705.722.0469
274 Hurst Drive, Barrie ON, L4N 0Z3

Tollendale Village

virtual tour
menu

menuclose menu

Download our information package (PDF - 4 MB)

download file

note:

Rent and Life lease values, as well as Occupancy fees that are shown, are subject to change and will be confirmed at the time the Reservation Form is signed by SCCSHI.

examples:

Full Life Lease residents pay an entrance fee equal to the full life lease value and then make a monthly payment consisting of the Occupancy Fees. E.g. assuming a resident wishes to life lease a Forestberry unit, he/she would pay an entrance fee of $412,500.00, and then pay an occupancy fee of $1,399.00 per month.
Other optional fees may apply.

Rental residents pay no entrance fee but pay a monthly rental rate which includes the monthly occupancy fee.
Other optional fees may apply.

The floor plans are listed below. Click on the name to see details regarding each unit.

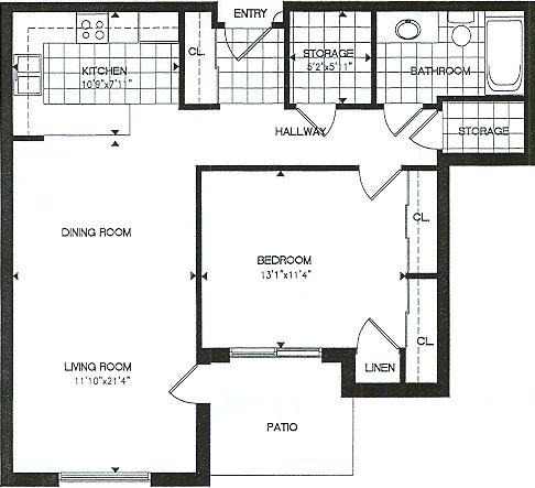
willow

square footage: 633willow floor plan - Tollendale Village

floor: ALL

building: Eden Hall

bedrooms: 1

bathrooms: 1

optional laundry: N

fireplace: N

rent: $1,502.00 (includes the occupancy fee)

life lease value: $204,000.00

occupancy: $780.00

For life lease residents the monthly occupancy fee will apply each month.

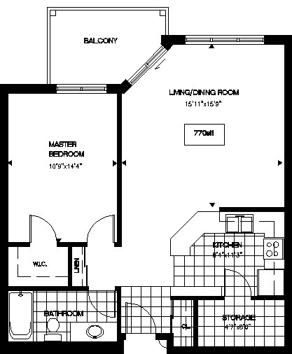
lilac

square footage: 770lilac floor plan - Tollendale Village

floor: ALL

building: ALL

bedrooms: 1

bathrooms: 1

optional laundry: N

fireplace: N

rent: $1,837.00 (includes the occupancy fee)

life lease value: $248,000.00

occupancy: $912.00

For life lease residents the monthly occupancy fee will apply each month.

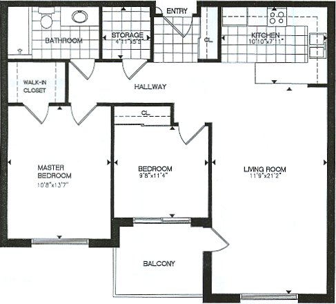
holly

square footage: 800holly floor plan - Tollendale Village

floor: 1

building: Eden Hall, Bethany Gables

bedrooms: 1

bathrooms: 1

optional laundry: N

fireplace: N

rent: $1,898.00 (includes the occupancy fee)

life lease value: $257,500.00

occupancy: $936.00

For life lease residents the monthly occupancy fee will apply each month.

cranberry 1

square footage: 892cranberry 1 floor plan - Tollendale Village

floor: ALL

building: Eden Hall, Bethany Gables

bedrooms: 2

bathrooms: 1

optional laundry: N

fireplace: N

rent: $2,173.00 (includes the occupancy fee)

life lease value: $287,000.00

occupancy: $1,032.00

For life lease residents the monthly occupancy fee will apply each month.

cranberry 2

square footage: 915cranberry 2 floor plan - Tollendale Village

floor: ALL

building: Trinity Woods, Sonrise Place

bedrooms: 2

bathrooms: 1

optional laundry: N

fireplace: N

rent: $2,225.00 (includes the occupancy fee)

life lease value: $296,500.00

occupancy: $1,054.00

For life lease residents the monthly occupancy fee will apply each month.

bayberry

square footage: 940bayberry floor plan - Tollendale Village

floor: ALL

building: Eden Hall, Bethany Gables

bedrooms: 2

bathrooms: 1

optional laundry: N

fireplace: N

rent: $2,294.00 (includes the occupancy fee)

life lease value: $302,500.00

occupancy: $1,092.00

For life lease residents the monthly occupancy fee will apply each month.

coralberry 2

square footage: 955coralberry 2 floor plan - Tollendale Village

floor: ALL

building: Bethany Gables

bedrooms: 2

bathrooms: 2

optional laundry: N

fireplace: N

rent: N/A

life lease value: $307,500.00

occupancy: $1,108.00

For life lease residents the monthly occupancy fee will apply each month.

coralberry 3

square footage: 955coralberry 3 floor plan - Tollendale Village

floor: ALL

building: Bethany Gables

bedrooms: 2

bathrooms: 2

optional laundry: N

fireplace: N

rent: N/A

life lease value: $310,500.00

occupancy: $1,108.00

For life lease residents the monthly occupancy fee will apply each month.

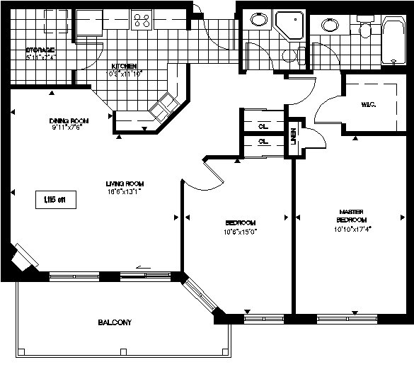
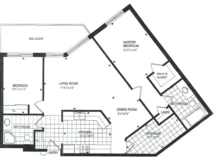
coralberry 1

square footage: 1001coralberry 1 floor plan - Tollendale Village

floor: ALL

building: Eden Hall

bedrooms: 2

bathrooms: 2

optional laundry: N

fireplace: N

rent: N/A

life lease value: $322,500.00

occupancy: $1,144.00

For life lease residents the monthly occupancy fee will apply each month.

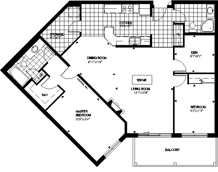
partridgeberry

square footage: 1025partridgeberry floor plan - Tollendale Village

floor: 1

building: Bethany Gables

bedrooms: 2

bathrooms: 2

optional laundry: N

fireplace: N

rent: N/A

life lease value: $329,500.00

occupancy: $1,173.00

For life lease residents the monthly occupancy fee will apply each month.

dewberry

square footage: 1075dewberry floor plan - Tollendale Village

floor: ALL

building: Bethany Gables

bedrooms: 2

bathrooms: 2

optional laundry: N

fireplace: N

rent: N/A

life lease value: $346,000.00

occupancy: $1,227.00

For life lease residents the monthly occupancy fee will apply each month.

bayberry 2

square footage: 1045bayberry 2 floor plan - Tollendale Village

floor: ALL

building: Sonrise Place

bedrooms: 2

bathrooms: 1

optional laundry: Y

fireplace: Y

rent: N/A

life lease value: $349,000.00

occupancy: $1,196.00

For life lease residents the monthly occupancy fee will apply each month.

loganberry

square footage: 1128loganberry floor plan - Tollendale Village

floor: ALL

building: Eden Hall, Bethany Gables

bedrooms: 2

bathrooms: 2

optional laundry: N

fireplace: N

rent: N/A

life lease value: $363,000.00

occupancy: $1,282.00

For life lease residents the monthly occupancy fee will apply each month.

mulberry

square footage: 1145mulberry floor plan - Tollendale Village

floor: ALL

building: Eden Hall

bedrooms: 2

bathrooms: 2

optional laundry: N

fireplace: N

rent: N/A

life lease value: $368,500.00

occupancy: $1,299.00

For life lease residents the monthly occupancy fee will apply each month.

jostaberry

square footage: 1110jostaberry floor plan - Tollendale Village

floor: L

building: Trinity Woods

bedrooms: 2

bathrooms: 2

optional laundry: Y

fireplace: Y

rent: N/A

life lease value: $370,500.00

occupancy: $1,266.00

For life lease residents the monthly occupancy fee will apply each month.

loganberry 1

square footage: 1115loganberry 1 floor plan - Tollendale Village

floor: L & 1

building: Trinity Woods, Sonrise Place

bedrooms: 2

bathrooms: 2

optional laundry: Y

fireplace: Y

rent: N/A

life lease value: $372,500.00

occupancy: $1,273.00

For life lease residents the monthly occupancy fee will apply each month.

loganberry 3

square footage: 1115loganberry 3 floor plan - Tollendale Village

floor: ALL

building: Trinity Woods, Sonrise Place

bedrooms: 2

bathrooms: 2

optional laundry: Y

fireplace: Y

rent: N/A

life lease value: $372,500.00

occupancy: $1,273.00

For life lease residents the monthly occupancy fee will apply each month.

loganberry 4

square footage: 1124loganberry 4 floor plan - Tollendale Village

floor: ALL

building: Sonrise Place

bedrooms: 2

bathrooms: 2

optional laundry: Y

fireplace: Y

rent: N/A

life lease value: $375,500.00

occupancy: $1,278.00

For life lease residents the monthly occupancy fee will apply each month.

loganberry 2

square footage: 1135loganberry 2 floor plan - Tollendale Village

floor: ALL

building: Trinity Woods, Sonrise Place

bedrooms: 2

bathrooms: 2

optional laundry: Y

fireplace: Y

rent: N/A

life lease value: $379,000.00

occupancy: $1,293.00

For life lease residents the monthly occupancy fee will apply each month.

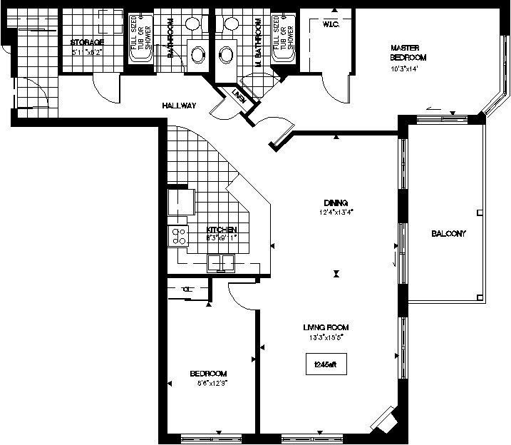
alderberry

square footage: 1245alderberry floor plan - Tollendale Village

floor: ALL

building: Bethany Gables

bedrooms: 2

bathrooms: 2

optional laundry: N

fireplace: N

rent: N/A

life lease value: $400,500.00

occupancy: $1,402.00

For life lease residents the monthly occupancy fee will apply each month.

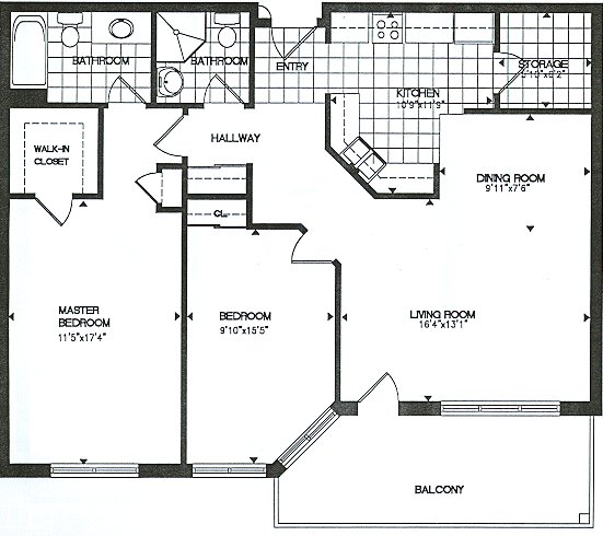
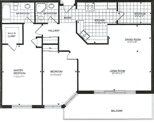
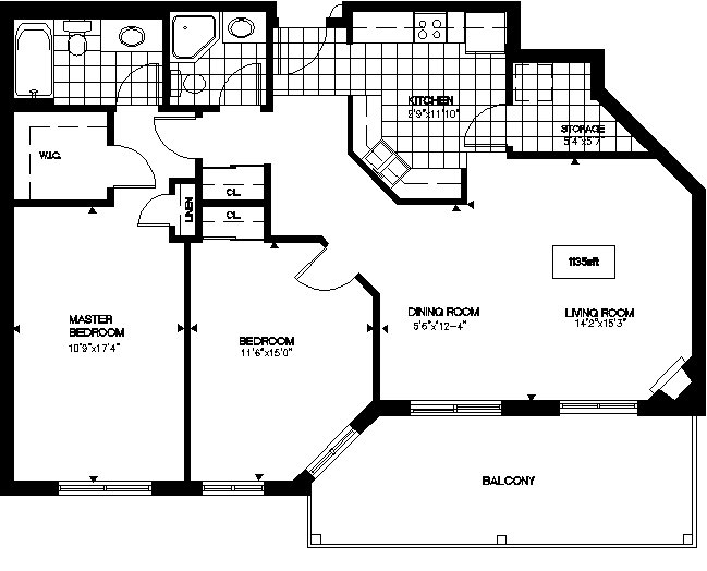
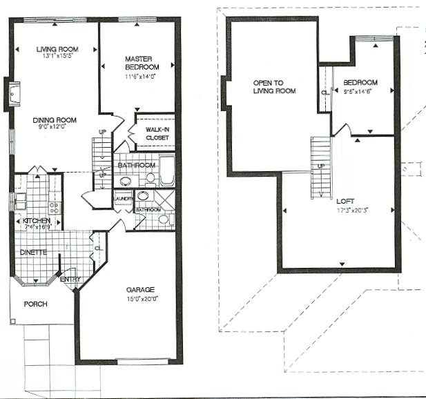
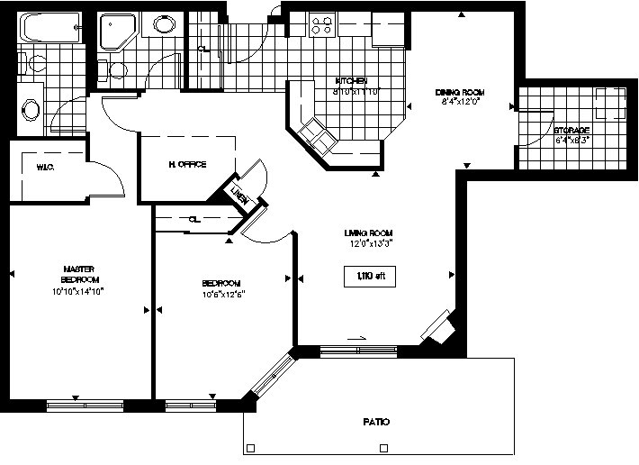
forestberry

square footage: 1235forestberry floor plan - Tollendale Village

floor: ALL

building: Trinity Woods, Sonrise Place

bedrooms: 2 + Den

bathrooms: 2

optional laundry: Y

fireplace: Y

rent: N/A

life lease value: $412,500.00

occupancy: $1,399.00

For life lease residents the monthly occupancy fee will apply each month.

boysenberry 2

square footage: 1245boysenberry 2 floor plan - Tollendale Village

floor: ALL

building: Sonrise Place

bedrooms: 2 + Den

bathrooms: 2

optional laundry: Y

fireplace: Y

rent: N/A

life lease value: $415,500.00

occupancy: $1,405.00

For life lease residents the monthly occupancy fee will apply each month.

juneberry

square footage: 1245juneberry floor plan - Tollendale Village

floor: ALL

building: Trinity Woods

bedrooms: 2

bathrooms: 2

optional laundry: Y

fireplace: Y

rent: N/A

life lease value: $415,500.00

occupancy: $1,405.00

For life lease residents the monthly occupancy fee will apply each month.

boysenberry 1

square footage: 1274boysenberry 1 floor plan - Tollendale Village

floor: ALL

building: Trinity Woods

bedrooms: 2 + Den

bathrooms: 2

optional laundry: Y

fireplace: Y

rent: N/A

life lease value: $425,000.00

occupancy: $1,436.00

For life lease residents the monthly occupancy fee will apply each month.

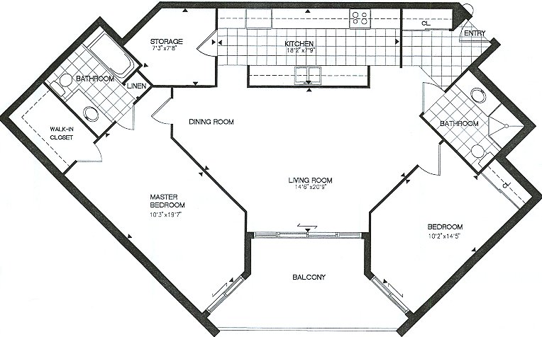
wilderberry

square footage: 1290wilderberry floor plan - Tollendale Village

floor: ALL

building: Trinity Woods, Sonrise Place

bedrooms: 2 + Den

bathrooms: 2

optional laundry: Y

fireplace: Y

rent: N/A

life lease value: $431,000.00

occupancy: $1,707.00

For life lease residents the monthly occupancy fee will apply each month.

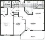
garden home

square footage: 1510garden home floor plan - Tollendale Village

floor: N/A

building: Semis

bedrooms: 2

bathrooms: 2

optional laundry: Y

fireplace: Y

rent: N/A

life lease value: $499,500.00

occupancy: $1,745.00

For life lease residents the monthly occupancy fee will apply each month.